$120,000
$129,000
7.0%For more information regarding the value of a property, please contact us for a free consultation.
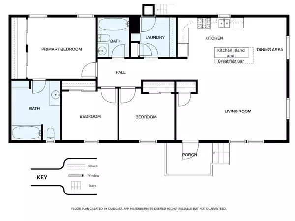
3 Beds
2 Baths
1,248 SqFt
SOLD DATE : 05/23/2025
Key Details
Sold Price $120,000
Property Type Manufactured Home
Sub Type Manufactured Home
Listing Status Sold
Purchase Type For Sale
Square Footage 1,248 sqft
Price per Sqft $96
MLS Listing ID HD25001942
Sold Date 05/23/25
Bedrooms 3
Full Baths 2
Year Built 2021
Property Sub-Type Manufactured Home
Property Description
This inviting 2021 double-wide home is perfectly located on a desirable corner lot within a welcoming and pet-friendly community. Featuring a gated front yard and a convenient indoor laundry room, this home is move-in ready and waiting for you! With a fresh coat of paint, brand-new carpet, and included appliances, all that's left is your personal touch. Prospective buyers will need park approval, so get ready to make your move. The park offers fantastic amenities, including a community pool, spa, playground, and clubhouse.
Location
State CA
County San Bernardino
Direction upon entering the park, turn right at the clubhouse and follow that path, you will see the sign on the property
Interior
Heating Forced Air Unit
Cooling Central Forced Air
Flooring Carpet, Linoleum/Vinyl
Fireplace No
Exterior
Garage Spaces 1.0
Fence Chain Link
Pool Community/Common
View Y/N No
Water Access Desc Public
Total Parking Spaces 1
Building
Story 1
Sewer Public Sewer, Unknown
Water Public
Level or Stories 1
Others
Senior Community No
Tax ID 0427063126051
Acceptable Financing Submit
Listing Terms Submit
Special Listing Condition Standard
Read Less Info
Want to know what your home might be worth? Contact us for a FREE valuation!

Our team is ready to help you sell your home for the highest possible price ASAP

Bought with Jamie Cordova Hamilton Landon Real Estate

"My job is to find and attract mastery-based agents to the office, protect the culture, and make sure everyone is happy! "






